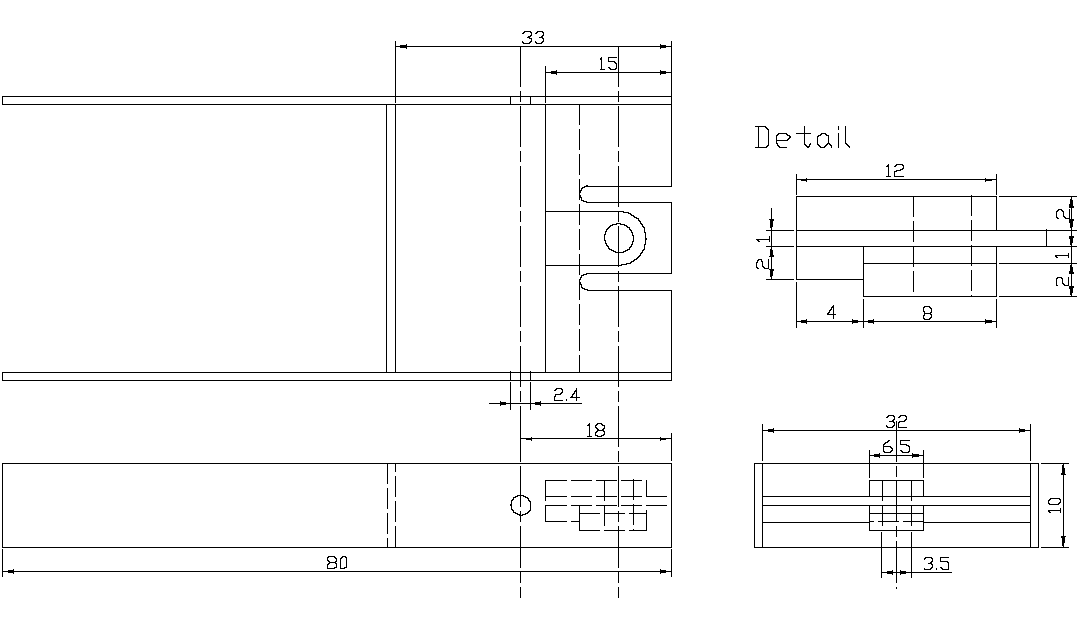
Second Prototype Chassis