Johnson 111 Motor

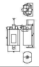
Here are some additional views of the Johnson 111 motor, including a drawing of the motor. The original AutoCAD file is also available (right click, "Save Target As...").

Top Bottom Pinion End Line drawing

Back to Ready Built Cars Return to Top of Page